




TDK The Met
TDK The Met
TDK The Met
TDK The Met
TDK The Met
TDK The Met
TDK The Met
TDK The Met


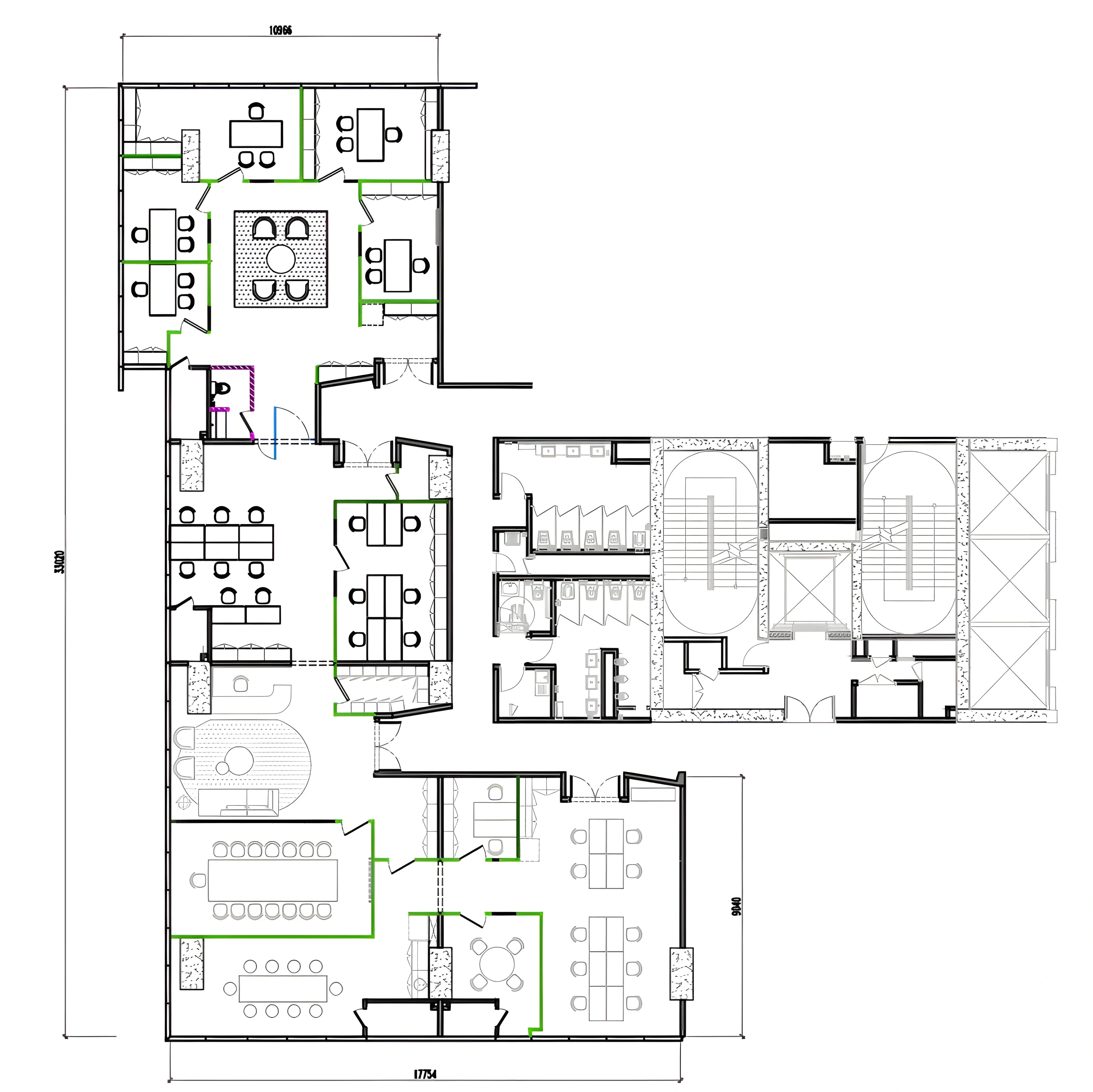
The design for TDK The Met office space masterfully achieves a dynamic, high-rise work environment by expertly blending industrial finishes with rich, contemporary warmth. The aesthetic is defined by expansive windows that frame stunning city views, raw exposed ceilings, and sleek, black-framed ribbed glass partitions, creating an open yet structured feel throughout the floor. Warmth and focus are introduced through a palette of soft neutrals, rich wood tones, and bold accents, most notably the striking curved terracotta reception desk backed by a subtly lit, slatted feature wall. From the collaborative, oatmeal-upholstered banquette seating in the breakout zones to the formal conference room featuring a sound-buffering wooden ceiling panel, The Met TDK delivers a sophisticated and inspiring workspace that prioritizes both modern style and optimal functionality.
Year: 2025
Type: Commercial
Size: 5000 sqft

The design for TDK The Met office space masterfully achieves a dynamic, high-rise work environment by expertly blending industrial finishes with rich, contemporary warmth. The aesthetic is defined by expansive windows that frame stunning city views, raw exposed ceilings, and sleek, black-framed ribbed glass partitions, creating an open yet structured feel throughout the floor. Warmth and focus are introduced through a palette of soft neutrals, rich wood tones, and bold accents, most notably the striking curved terracotta reception desk backed by a subtly lit, slatted feature wall. From the collaborative, oatmeal-upholstered banquette seating in the breakout zones to the formal conference room featuring a sound-buffering wooden ceiling panel, The Met TDK delivers a sophisticated and inspiring workspace that prioritizes both modern style and optimal functionality.
Year: 2025
Type: Commercial
Size: 5000 sqft









