




Rasa Food Arena SCM
Rasa Food Arena SCM
Rasa Food Arena SCM
Rasa Food Arena SCM
Rasa Food Arena SCM
Rasa Food Arena SCM
Rasa Food Arena SCM
Rasa Food Arena SCM


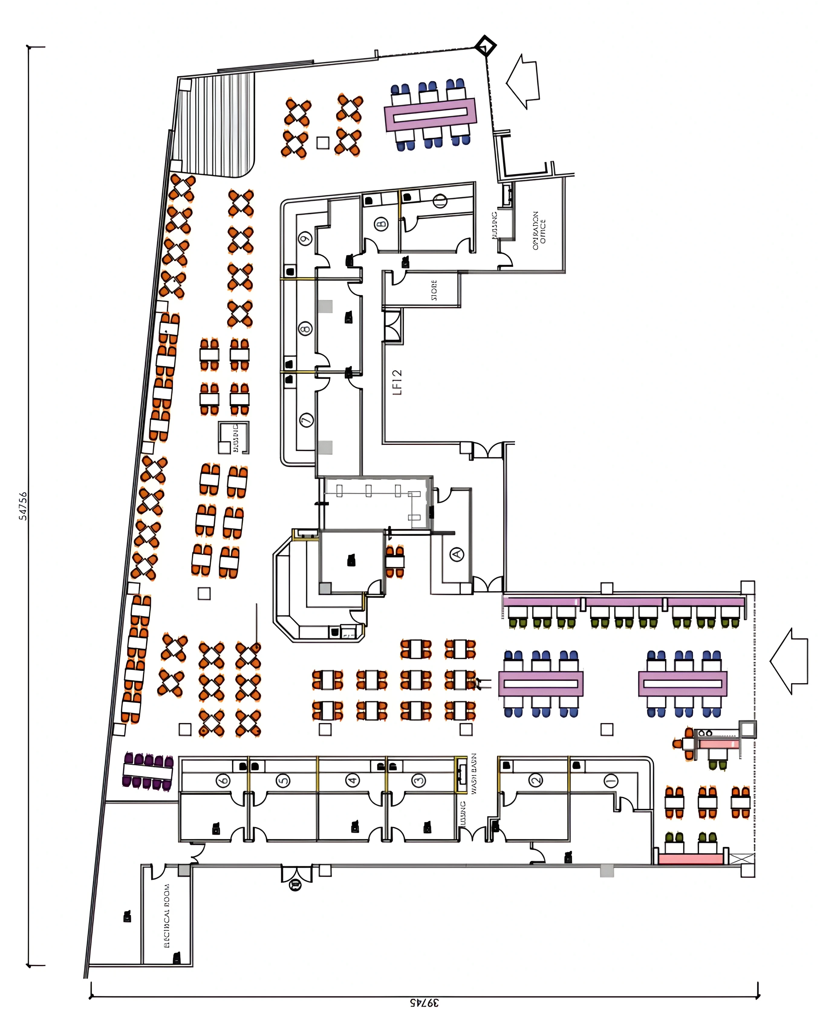
The Rasa Food Arena at Setia City Mall presents a dynamic and contemporary food court experience, designed to be visually appealing, highly functional, and comfortably accommodating for large volumes of customers. The space utilizes a sophisticated interplay of lighting and modern design elements to create a distinctive atmosphere. A key feature is the bold ceiling design, which combines black painted sections with linear LED lighting strips forming striking geometric patterns, ensuring a bright and modern environment. The food stalls and central columns are enhanced by warm wooden vertical slat accents illuminated by bright backlighting, providing a visually appealing contrast against the clean, light-toned service counters. Seating areas are clearly defined by the use of varied furniture colors, incorporating blocks of bold terracotta orange, deep teal/blue, and neutral brown/taupe chairs, which delineate zones while adding vibrant energy. The layout is optimized for efficiency, featuring well-organized service and pick-up counters, and is softened by integrated planters that introduce a touch of natural greenery, creating a clean, high-energy, and welcoming communal dining space.
Year: 2022
Type: Commercial
Size: 23700 sqft





Rasa Food Arena SCM
Rasa Food Arena SCM
Rasa Food Arena SCM
Rasa Food Arena SCM
Rasa Food Arena SCM
Rasa Food Arena SCM
Rasa Food Arena SCM
Rasa Food Arena SCM

The Rasa Food Arena at Setia City Mall presents a dynamic and contemporary food court experience, designed to be visually appealing, highly functional, and comfortably accommodating for large volumes of customers. The space utilizes a sophisticated interplay of lighting and modern design elements to create a distinctive atmosphere. A key feature is the bold ceiling design, which combines black painted sections with linear LED lighting strips forming striking geometric patterns, ensuring a bright and modern environment. The food stalls and central columns are enhanced by warm wooden vertical slat accents illuminated by bright backlighting, providing a visually appealing contrast against the clean, light-toned service counters. Seating areas are clearly defined by the use of varied furniture colors, incorporating blocks of bold terracotta orange, deep teal/blue, and neutral brown/taupe chairs, which delineate zones while adding vibrant energy. The layout is optimized for efficiency, featuring well-organized service and pick-up counters, and is softened by integrated planters that introduce a touch of natural greenery, creating a clean, high-energy, and welcoming communal dining space.
Year: 2022
Type: Commercial
Size: 23700 sqft









