




Puteri Bay Hotel Room
Puteri Bay Hotel Room
Puteri Bay Hotel Room
Puteri Bay Hotel Room
Puteri Bay Hotel Room
Puteri Bay Hotel Room
Puteri Bay Hotel Room
Puteri Bay Hotel Room


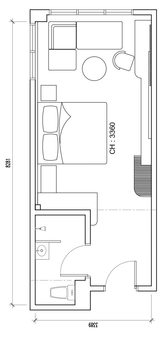
The interior design proposal for the Pantai Puteri Bay Hotel Room establishes a tranquil and contemporary coastal retreat, utilizing a palette that evokes relaxation and modern comfort. The aesthetic is defined by a bright, airy foundation of light grey/beige tones on the walls and flooring, complemented by the warmth of medium-toned wood finishes used for built-in headboards, feature walls, and custom cabinetry. The design emphasizes natural light and connection to the environment, featuring minimalist framed windows and an uncluttered layout. A distinctive element is the use of subtle, textured paneling or wallpaper behind the bed, often in a neutral shade with a faint pattern, adding visual depth without overwhelming the space. The furniture is contemporary and low-profile, and lighting is mostly integrated and ambient, relying on recessed ceiling lights and elegant, modern bedside pendants to create a soothing, high-end guest experience suitable for a beach resort.
Year: 2021
Type: Commercial
Size: 2498 sqft





Puteri Bay Hotel Room
Puteri Bay Hotel Room
Puteri Bay Hotel Room
Puteri Bay Hotel Room
Puteri Bay Hotel Room
Puteri Bay Hotel Room
Puteri Bay Hotel Room
Puteri Bay Hotel Room

The interior design proposal for the Pantai Puteri Bay Hotel Room establishes a tranquil and contemporary coastal retreat, utilizing a palette that evokes relaxation and modern comfort. The aesthetic is defined by a bright, airy foundation of light grey/beige tones on the walls and flooring, complemented by the warmth of medium-toned wood finishes used for built-in headboards, feature walls, and custom cabinetry. The design emphasizes natural light and connection to the environment, featuring minimalist framed windows and an uncluttered layout. A distinctive element is the use of subtle, textured paneling or wallpaper behind the bed, often in a neutral shade with a faint pattern, adding visual depth without overwhelming the space. The furniture is contemporary and low-profile, and lighting is mostly integrated and ambient, relying on recessed ceiling lights and elegant, modern bedside pendants to create a soothing, high-end guest experience suitable for a beach resort.
Year: 2021
Type: Commercial
Size: 2498 sqft









