




DXN CyberVille
DXN CyberVille
DXN CyberVille
DXN CyberVille
DXN CyberVille
DXN CyberVille
DXN CyberVille
DXN CyberVille


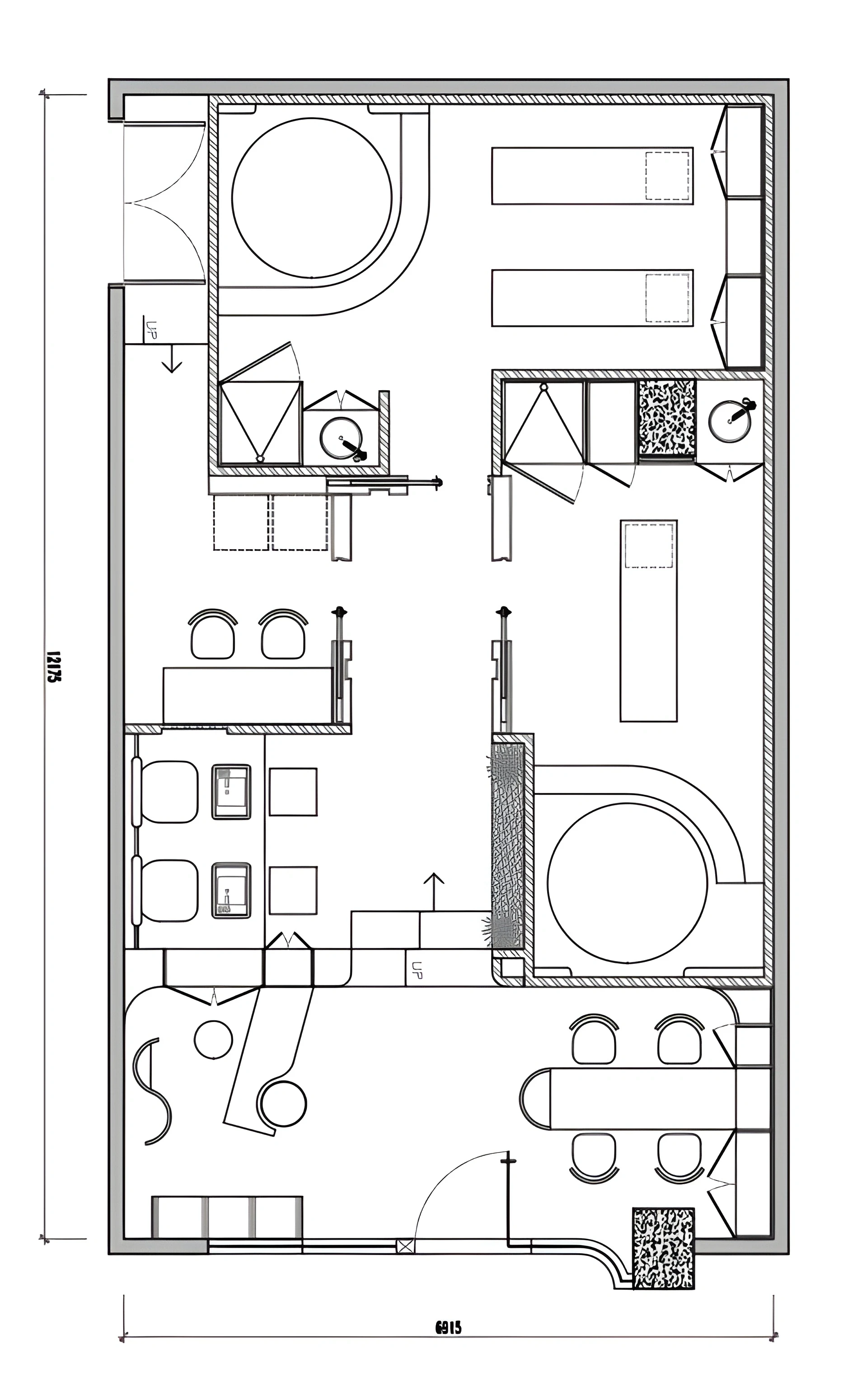
The DXN Cyberville project unveils a premium wellness and beauty center where modern luxury meets tranquil well-being. The facility’s aesthetic is defined by clean lines, sophisticated architectural arches, and warm, ambient lighting, utilizing polished white marble and rich brass-toned accents to create an immediate atmosphere of exclusivity and calm. The meticulous design guides you from the glass-fronted, elegant reception into specialized zones, including signature private treatment suites featuring twinkling, starry-sky ceilings for an immersive therapeutic experience, and dedicated care areas like our soothing foot therapy zone. Every detail, down to the plant-lined corridors, has been crafted to make DXN Cyberville a truly high-end, immersive sanctuary dedicated to your complete restoration.
Year: 2024
Type: Commercial
Size: 900 sqft





DXN CyberVille
DXN CyberVille
DXN CyberVille
DXN CyberVille
DXN CyberVille
DXN CyberVille
DXN CyberVille
DXN CyberVille

The DXN Cyberville project unveils a premium wellness and beauty center where modern luxury meets tranquil well-being. The facility’s aesthetic is defined by clean lines, sophisticated architectural arches, and warm, ambient lighting, utilizing polished white marble and rich brass-toned accents to create an immediate atmosphere of exclusivity and calm. The meticulous design guides you from the glass-fronted, elegant reception into specialized zones, including signature private treatment suites featuring twinkling, starry-sky ceilings for an immersive therapeutic experience, and dedicated care areas like our soothing foot therapy zone. Every detail, down to the plant-lined corridors, has been crafted to make DXN Cyberville a truly high-end, immersive sanctuary dedicated to your complete restoration.
Year: 2024
Type: Commercial
Size: 900 sqft









